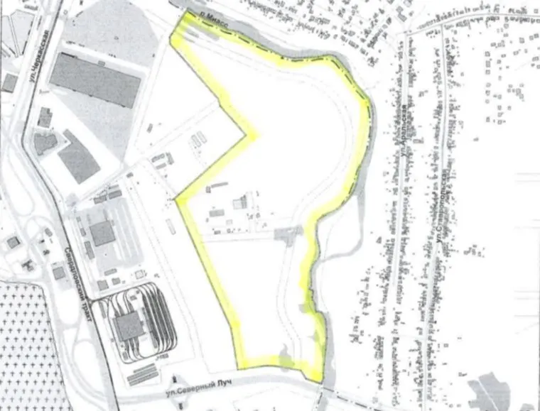
Крупный микрорайон построят в Челябинске за бывшей городской свалкой у реки Миасс. Карта

Крупный микрорайон возведут за промзоной на 53 гектарах земли
Фото: Вадим Ахметов © URA.RU
Мэрия Челябинска одобрила строительство нового микрорайона за бывшей городской свалкой и промзоной вблизи реки Миасс в Курчатовском и Металлургическом районах города. На территории планируется возвести высотные дома, соцобъекты и магазины. Проект рекомендован к утверждению, сообщается в заключении на сайте мэрии.
«Слушания считать состоявшимися. Документация по планировке территории (проект планировки территории с проектом межевания территории) в границах улицы Проектной 1-й, Северного Луча, набережной реки Миасс в Курчатовском и Металлургическом районах города Челябинска рекомендована к утверждению. Инициатор проекта — ООО „Трест Магнитострой“, — сообщается на сайте.
Как сообщается в документации, возвести новый микрорайон планируется на участке между улицей Северный Луч и поселком Першино, вдоль побережья реки Миасс. Всего будет возведено 23 многоквартирных дома. Также на территории появятся соцобъекты — школа на 1500 мест, детский сад на 400 мест, спорткомплекс, магазины и автостоянки. Всего под жилой микрорайон будет выделено 53 гектара.
Как сообщается на сайте, замечания и предложения по застройке территории можно было подавать на сайте госуслуг с 7 по 14 февраля. Замечаний от участников не поступило. В результате проект был одобрен.

На территории планируется возвести высотные дома, соцобъекты и магазины
Фото: сайт мэрии Челябинска
Что случилось в Челябинске и Магнитогорске? Переходите и подписывайтесь на telegram-каналы «Челябинск, который смог» и «Стальной Магнитогорск», чтобы узнавать все новости первыми!
- Алексей17 марта 2025 23:43Бронируйте квартиры с отличным видом на промзону!