У жены Мединского нашли пентхаус за 200 млн рублей. ФОТО

За 2018 год Владимир Мединский заработал 41,9 млн рублей
Фото: Фото: Владимир Андреев © URA.RU
Фонд борьбы с коррупцией (ФБК) блогера Алексея Навального опубликовал расследование, в котором говорится, что жене министра культуры РФ Владимира Мединского Марине принадлежит элитный пентхаус стоимостью не менее 200 миллионов рублей.
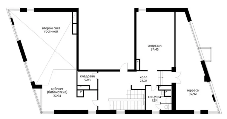
«Новенький двухэтажный пентхаус министра культуры России Мединского куплен и оформлен на жену», — говорится в расследовании. Отмечается, что права на собственность были оформлены в 2018 году. Дом находится в элитном жилом комплексе «Садовые кварталы» в центре Москвы. Площадь пентхауса, расположенного на 12-м и 13-м этажах, составляет 300 квадратных метров. В доме есть спортзал, библиотека, спальни и гостиная площадью 65 квадратных метров с восьмиметровыми потолками. Также есть выход на террасу площадью в 30 «квадратов».
По словам Навального, согласно декларациям о доходах, чтобы купить такой дом, семье Мединского пришлось бы откладывать «до копейки» все свои заработки начиная еще с 2013 года. Из декларации следует, что за 2018 год министр культуры заработал 41,9 млн рублей, а его жена — 41,8 млн рублей. На момент публикации «URA.RU» получить комментарий Мединского не удалось.

Фото: ЖК «Садовые кварталы»

Фото: ЖК «Садовые кварталы»

Фото: ЖК «Садовые кварталы»

Фото: ЖК «Садовые кварталы»
Публикации, размещенные на сайте www.ura.news и датированные до 19.02.2020г., являются архивными и были выпущены другим средством массовой информации. Редакция и учредитель не несут ответственности за публикации других СМИ в соответствии с п. 6 ст. 57 Закона РФ от 27.12.1991 №2124-1 «О средствах массовой информации».
Не упустите шанс быть в числе первых, кто узнает о главных новостях России и мира! Присоединяйтесь к подписчикам telegram-канала URA.RU и всегда оставайтесь в курсе событий, которые формируют нашу жизнь. Подписаться на URA.RU.
- Андрей25 мая 2019 00:43Друзья! Был в 90-е мелким бандитом, потом комерсантом, потом муницыпальным служащим, посмотрел что вытворяют ,, городцкие управленцы,, волосы дыбом,а что вытворяют ФЕДЕРАЛЬНЫЕ служащие у меня даже в уме не укладывается
- Недопенс24 мая 2019 18:05Так вот,где наши пенсии!
- позинт24 мая 2019 16:46я бы в министры пошла пусть меня научат-вот уж Маяковский был прав-но пенсионеров туды не берут да еще простых выживающих-
- свп24 мая 2019 14:15оНИ , не просто "...далеки от народа"... ОНИ В ДРУГОЙ!!! стране обитают, хоть и на территории РОССИИ,, СПРОШАТЬ-ТО ... НЕКОМУ.... НЕ КИТАЙ..
- В.И. Ленин24 мая 2019 12:22Страшно далеки они от народа... Самое смешное, что все эти яхты, заводы-пароходы на тот свет не утащишь, а дети у таких в основном бездари и все прос...ут.