В Кургане отдают более миллиона квадратов земли под комплексную застройку в двух микрорайонах. Карта

В микрорайонах Кургана выделили две больших территории под КРТ
Фото: Екатерина Сычкова © URA.RU
Власти Кургана выделили два незастроенных земельных участка площадью более 1,2 миллиона квадратных метров под комплексное развитие территорий (КРТ). Запланировано строительство жилых домов в микрорайонах Зайково и Левашово. О том, какие объекты будут возводить в рамках проектов — в материале корреспондента URA.RU.
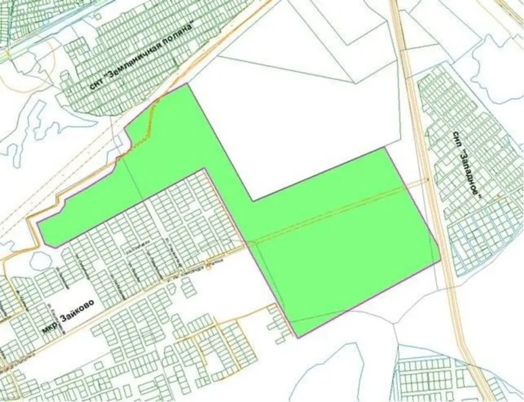
Самую большую незастроенную территорию под КРТ отдают в микрорайоне Зайково. Его площадь составляет 1 110 732 квадратных метра (111 га). На участке предполагается строительство индивидуальными и малоэтажными жилыми домами. Также разрешено возводить магазины, помещения и площадки для занятия спортом, здания бытового обслуживания. Высота объектов не должна превышать три этажа.
Другая незастроенная территория из двух несмежных участков находится в микрорайоне Левашово. Ее площадь меньше более чем в шесть раз — 178 029 квадратных метров (18 га). Здесь как и в Зайково в рамках КРТ планируется индивидуальное жилищное строительство и блокированная жилая застройка (до трех этажей), а также другие объекты инфраструктуры. Реализация проектов КРТ рассчитана на семилетний срок.
Ранее URA.RU писало, что в Курганской области по проектам КРТ введут два миллиона квадратов жилья до 2032 года. Под эти цели уже вовлечено свыше 700 гектаров земельных участков. Заключено 17 договоров на 330 гектаров.
В Зайково под КРТ отдают землю площадью свыше 1,1 миллиона квадратов
Фото: Администрация города Кургана
Материал из сюжета:
Комплексная застройка в Курганской областиЧто случилось в Кургане? Переходите и подписывайтесь на telegram-канал «Курганистан», чтобы узнавать все новости первыми!


