Курганскую общественницу ужаснул ремонт горсада. «Это сродни преступлению»

Курганский горсад должны отремонтировать к 15 июня
Фото: Фото: Екатерина Сычкова © URA.RU
Городской сад Кургана превращается в простой районный парк; он должен стать средоточием ландшафтных изысков, но пока рискует превратиться в обычную дворовую площадку. Таким мнением общественный представитель Агентства стратегических инициатив в Курганской области по направлению «Городское развитие» Оксана Ковалева поделилась на своей странице во «ВКонтакте».
«Нельзя понижать статус Городского сада до районного парка, что сродни преступлению перед городом. Понимаю, что это происходит от непонимания элементарных для архитекторов и градостроителей вещей. То есть от некомпетентности в данной сфере чиновников, принимающих решения», — заявила общественница.
Курганцы с 2015 года бились за сохранение горсада. Мэрия расторгла договор с арендатором, территория перешла под муниципальный контроль. При этом удалось избежать застройки территории. Ковалева уточнила, что горсад в Кургане — один из немногих сохранившихся в России. Но ремонт приводит к уничтожению растительности.
«Городской сад должен радовать горожан, в первую очередь, ландшафтными изысками, но никак не качелями, каруселями и прочими банальными штуками, место которым во дворах. Мое обращение к администрации города Кургана: давайте просто поговорим, если разобраться самим у вас нет времени и необходимого багажа знаний, но не губите городской сад!» — обратилась Ковалева к городским властям.
В пресс-службу мэрии URA.RU направило запрос с просьбой прокомментировать письмо Ковалевой. В ближайшее время в администрации пообещали предоставить комментарий.
Горожане заметили отсутствие деревьев в части парка в середине апреля. Власти Кургана объяснили, что были убраны только больные растения. Летом 2020 года стало известно о начале благоустройства горсада Кургана. На него было выделено 27,288 млн рублей. Завершить работу планируют до 15 июня.

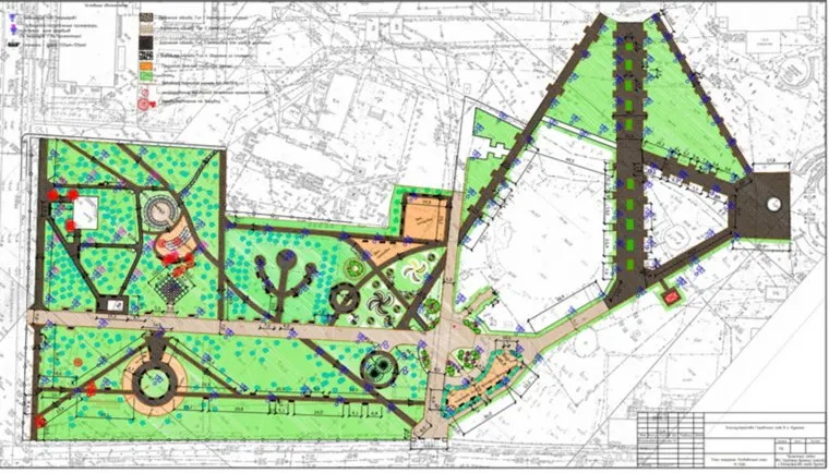
План реконструкции Городского сада
Фото: Скрин с сайта госзакупок
Подписывайтесь на URA.RU в , и наш канал в . Оперативные новости вашего региона — в telegram-канале « » и в viber-канале « », подбор главных новостей дня — в нашей рассылке с доставкой в вашу почту.
Что случилось в Кургане? Переходите и подписывайтесь на telegram-канал «Курганистан», чтобы узнавать все новости первыми!
- Соседям23 мая 2021 15:46Вы еще не видели, как изуродовали в Челябинске площадь революции и прилегающий парк к театральной площади. Навтыкали столбов и палок с интервалом полтора метра со страшными фонарями. Кто-то на этом явно нажился. А землю и подзол уничтожили. Ващще Обнаглели
- Ландшафтный дизайнер20 мая 2021 14:37И, кстати, в московских садах для детей организуются специальные маршруты - не зависайте в прошлом. Даже досуг детей в садах должен быть организован иначе, т.е. в связи с природой. 21 век, однако!
- Ландшафтный дизайнер20 мая 2021 14:34Горсад Кургана слишком маленький чтобы заполнять его детскими площадками в то время когда качели-карусели и песочницы появились почти в каждом дворе. Отдайте наконец горсад красивому озеленению. Это ведь пойдет на благо Вашему же здоровью. Пусть наконец городской сад Кургана станет САДОМ! Сейчас появилась такая возможность, которой раньше не было
- пусть горсад будет в зелени19 мая 2021 22:18Людмиле
- Машиностроитель19 мая 2021 14:00Ну хорошо, Ковалева не архитектор, хотя ее мнение достаточно профессиональное. Тогда почему в диалог не вступают курганские архитекторы? Хотелось бы узнать их профессиональное мнение.