Свердловчане требуют остановить стройку вблизи озера Балтым

Экоактивисты переживают за судьбу озера Балтым
Фото: Фото: Александр Мамаев © URA.RU
Жители Верхней Пышмы конфликтуют с городской администрацией и требуют прекратить стройку вблизи озера Балтым (поселок Санаторный, Свердловская область). Экоактивисты считают, что возведение таунхаусов на этом месте приведет к окончательной гибели водоема. Общественники через суд и прокуратуру пытаются защитить озеро и утвердить вокруг него природоохранную зону. О подробностях дела URA.RU рассказала многодетная мать, жительница поселка Елена.

На озере часто отдыхают местные жители и приезжают туристы
Фото: Жители поселка Санаторный
«По нашим сведениям, администрация действует с нарушениями. Статус земли с рекреационной переименовали в статус жилой застройки. Это превратит озеро в болото. Глава Верхней Пышмы Иван Солин полностью одобрил проект ООО „Березовая роща“, но мы против. Он хочет построить на территории около базы отдыха „Огонь пляжа“ более 200 домов. Мы будем обращаться с претензиями в прокуратуру, очередной суд состоится 13 августа», — рассказывает активистка.
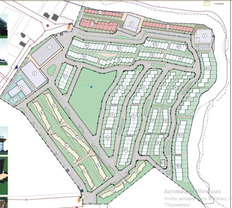
Конфликт назревал еще с 2023 года. Тогда глава верхнепышминский глава Соломин подписал постановление об утверждении проекта застройщика ООО «Березовая роща» о возведении таунхаусов в поселке Санаторный. Жители поселка подали в суд на администрацию и потребовали отмены проекта. Однако, как говорит Елена, мэрия и застройщик проигнорировали мнение людей, провели археологическое обследование, а затем получили заключение о реализации строительства таунхаусов и гостиниц.

Проект подразумевает комплексную застройку берега озера
Фото: Фото: читатель URA.RU
«Территория получила статус жилой застройки, а ведь на этом месте могут отдыхать более тысячи человек, там все оборудовано шезлонгами и волейбольными площадками. Кроме того, мы уверены, что в документах проекта неправильно прописаны границы стройки и сведения, внесенные единый государственный реестр недвижимости (ЕГРН)», — говорит активистка.
Представитель застройщика ООО «Березовая роща» Максим Мягель в разговоре с URA.RU объяснил, что перевод статуса земель не влечет автоматическую застройку, а лишь соответствует долгосрочной стратегии развития всего населенного пункта. По его словам, проект еще не утвержден.
«Недовольных всего лишь три-пять человек, которые точно так же семь лет назад были против развития проекта „Огонь пляж“. Мы проводили экспертизу, застройка никаким образом на озеро не влияет, и это подтверждается официальными заключениями специализирующихся на этом государственных учреждений», — уверяет он.
Мягель объяснил, что озеро Балтым пополняется за счет талого снега, а не от втекающих вод, и от стройки не обмельчает. «Мы действуем исключительно в рамках закона. Мы идем по процедуре соблюдения всех градостроительных норм и правил», — подчеркнул представитель.

На озере пока не идет стройка, так как документы не подписаны, экспертиза не проведена
Фото: Фото: Александр Мамаев © URA.RU
Он пояснил, что якобы незаконная вырубка леса, о которой упоминали активисты, была плановой. Березы, которым 60-80 лет, могут начать гнить, а это опасно из-за вероятности падения на туристов. Если произойдет ЧП, уголовная ответственность ляжет на застройщика.
«В мае был штормовой шквалистый ветер, и у нас на площадке упало 16 деревьев. Нами был вызван лесопатолог — официальное должностное лицо, который сделал заключение и признал 101 дерево аварийным. Их срубили, чтобы деревья не упали от старости и не причинили вред отдыхающим. Никакой внеплановой стройки там не идет. Это обычная санитарная рубка. Все документы, подтверждающие мои слова, имеются», — уточнил Мягель.

По словам застройщика, деревья нуждаются в уходе, а некоторые породы, которым более 60 лет, нужно спилить
Фото: Жители поселка Санаторный
«Мы даже разрешение на строительство еще не получали. Сначала должно быть выполнено проектирование. После процедуры идет экспертиза всех надлежащих органов, которые проверят, насколько потенциальное строительство будет соответствовать всем нормам регламента. Только после этого нам выдадут разрешение, это примерно через 9-12 месяцев. Еще все государственные органы должны проверить документы на соответствие. Это длительный процесс», — утверждает он.
Однако экоактивисты возражают, заверяя, что чиновники собираются вырубить березовую рощу протяженностью восемь гектаров и начать на этом месте стройку. Они доказывают, что озеро Балтым — памятник природы областного значения, территорию которого необходимо охранять.
«Администрация в проектах застройки чертит водоохранную зону в размере 50 метров от озера Балтым, ссылаясь на Федеральный закон. Однако водоохранная зона должна быть установлена в 200 метров. И по закону только Минприроды имеет право устанавливать водоохранную зону. Это не полномочия администрации», — возмущается Елена.
По сведениям общественницы, природоохранная прокуратура подала иск к Министерству природных ресурсов и обязала создать охранную зону вокруг озера Балтым. По словам активистов, эту зону пока не определили. Корреспондент URA.RU направил запрос в администрацию городского округа Верхней Пышмы. На момент публикации ответ не поступил.
Обновлено 5 августа в 15.05: добавлен комментарий администрации Верхней Пышмы
В пресс-службе администрации Верхней Пышмы ответили, что приостановления или отмены проекта по стройке не планируется, так как все работы ведутся с учетом закона. Там заявили, что речи о массовых протестах нет. По словам главы городского округа, все возражения поступают от незначительной группы граждан, мнения которых принимаются во внимание и анализируются.
«Действующее законодательство оснований для отказа об изменении генерального плана для строительства не установило. Собственники земельных участков вправе обжаловать решения, принятые органом местного самоуправления», — прокомментировали там.
Не упустите шанс быть в числе первых, кто узнает о главных новостях России и мира! Присоединяйтесь к подписчикам telegram-канала URA.RU и всегда оставайтесь в курсе событий, которые формируют нашу жизнь. Подписаться на URA.RU.