На северо-западе Челябинска построят новый крупный ТРК с парковкой. Карта

Площадь ТРК достигнет 2700 – 2800 квадратных метров
Фото: Александр Мамаев © URA.RU
В Калининском районе Челябинска старое здание реконструируют под новый торгово-развлекательный комплекс (ТРК), а также построят новые административное, офисное здание и парковку. Инициатор проекта — ООО «РадиоИзотопные приборы», сообщается в документации на сайте мэрии.
«Проект планировки территории выполнен с учетом документации в границах улиц Братьев Кашириных, Салават Юлаева, 250-летия Челябинска, Чичерина в Калининском районе. Проектом установлены границы зон планируемого размещения объектов капстроительства, определены характеристики и очередность планируемого развития территории», — сообщается в документации.
Как отмечается в пояснительной записке, общая площадь ТРК достигнет 2700 — 2800 квадратных метров, административного здания 330-600 квадратных метров. Также на территории планируется возвести многоуровневую автостоянку открытого типа площадью 400-1150 квадратов на 500-1500 мест и объект делового управления площадью 750-900 квадратных метров. Что касается очередности, все объекты на разных земельных участках будут строиться одновременно.

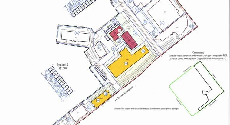
На карте красным обозначены проектируемые объекты строительства, желтым - реконструируемые
Фото: сайт мэрии г. Челябинска
Что случилось в Челябинске и Магнитогорске? Переходите и подписывайтесь на telegram-каналы «Челябинск, который смог» и «Стальной Магнитогорск», чтобы узнавать все новости первыми!
- Наташа30 мая 2025 20:46Кому они нужны эти ток?!!!
- Гость30 мая 2025 05:53Я про карту, написано только пересечение улиц. Плохо орентируют
- Гость30 мая 2025 05:52Что и где строят из данной статьи не понятно, локоция точно не указана
- Гость29 мая 2025 20:51Еще Не все заводы уничтожили?
- Галина29 мая 2025 15:23Действительно,эти ТРК на каждом шагу,мини-макси. Авот поликлиника, это вещь. Население на Северо-западе огог го, Не удовлетворительное обслуживание населения. Когда займетесь этим вопросом?






