На Урале отложили строительство нового зала филармонии, из-за которого сносят жилой дом

Ответственная структура отложила юридические вопросы по подготовке проектной документации на март—апрель
Фото: Фото: Владимир Жабриков © URA.RU
Строительство нового зала Свердловской филармонии затягивают из-за переноса изменений в правилах землепользования участка. Об этом URA.RU сообщили в Центре развития социально-культурных инициатив Свердловской области (структура, ответственная за строительство филармонии).
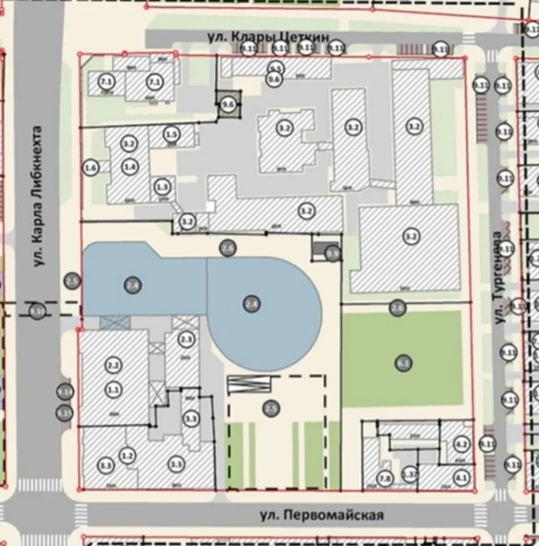
Периметр улиц Клары Цеткин—Тургенева—Первомайской—Карла Либкнехта в правилах землепользования сейчас разделен на несколько зон с разными назначениями: филармония — зона объектов культурно-зрелищного назначения, сад Вайнера — территория общего пользования, Уральский аграрный госуниверситет — зона объектов среднего и высшего образования. Назначение территорий сада Вайнера и университета не позволяют строить там какие-либо другие объекты. По проекту часть нового зала филармонии будет находиться на территории сада. Для этого необходимо изменить в правилах землепользования назначение территории данного периметра и уже тогда начинать проектирование нового объекта . На общественных слушаниях в прошлом году поднимался вопрос о переводе этой территории в зону объектов культурно-зрелищного назначения, но обсуждение отложили.

Зонирование периметра улиц Клары Цеткин — Тургенева — Первомайской — Карла Либкнехта
Фото: Фото: Актуальная редакция правила землепользования и застройки Екатеринбурга, Екатеринбург.рф
В пресс-службе регионального центра развития социально-культурных инициатив URA.RU уточнили, что «внесение изменений в правила землепользования и застройки отложено застройщиком до завершения корректировки концепции (март—апрель текущего года)». Гендиректор центра Игорь Дубровин уточнил URA.RU: «Не вижу смысла лезть в детали. Все в рамках плана. Планирование в 2020 году, и еще три года стройки».
Источник URA.RU, знакомый с процессуальными тонкостями, уточнил, что проектирование любого объекта не может проходить без градостроительного плана земельного участка (ГПЗУ, выписка из правил землепользования и застройки). «Пока эта зона не изменится, юридически, не имея ГПЗУ, нельзя начать проектирование. Неофициально — они могут делать все что угодно», — уточнил эксперт.
Проект нового здания филармонии на 2800 мест был разработан известным бюро Захи Хадид. Местные власти планируют построить его на месте жилого дома на Карла Либкнехта, 40 . Для этого филармония выкупила квартиры в здании . Выселить всех жильцов планируется в феврале.

Проект нового зала Свердловской филармонии
Фото:
Материал из сюжета:
Скандал вокруг строительства новой филармонии в ЕкатеринбургеПубликации, размещенные на сайте www.ura.news и датированные до 19.02.2020г., являются архивными и были выпущены другим средством массовой информации. Редакция и учредитель не несут ответственности за публикации других СМИ в соответствии с п. 6 ст. 57 Закона РФ от 27.12.1991 №2124-1 «О средствах массовой информации».
Что случилось в Екатеринбурге и Нижнем Тагиле? Переходите и подписывайтесь на telegram-каналы «Екатское чтиво» и «Наш Нижний Тагил», чтобы узнавать все новости первыми!
- знающий17 февраля 2020 21:15Автор прав, неофициально можно делать все. Для строительства Пассажа незаконно, без разрешения снесли памятник архитектуры федерального значения. Это давно устоявшаяся практика для Екатеринбурга. Разрешение на строительство эти ребята получают за месяц до ввода в эксплуатацию. Муниципальная или федеральная собственность означает, что у нее нет хозяина. А ее распорядитель за взятку всегда закроет глаза на нарушения. Сносить построенное тем более никто не будет.
- алексей15 февраля 2020 04:53торговый центр, под видом филармонии.
- Тюменский15 февраля 2020 03:45Если Колотурский и дальше будет так общаться с отставными силовиками, которые ему руку протягивают, то назначение земли можно сразу кладбищенское получать.
- фантазеры - зачем дом сносить15 февраля 2020 03:15зал на 2800 мест - смотрю на Космос 1000 мест - как часто он бывает заполнен
- старый воин15 февраля 2020 02:45все ясно-отжали домик в центре, а потом на попятную. Молодец женщина, последний житель. А теперь филармония распорядится им как захочет, а строить ничего и не будет. Только так!