В Ленинском районе Челябинска возведут новый жилой комплекс с ТРК и детсадом. Скрин

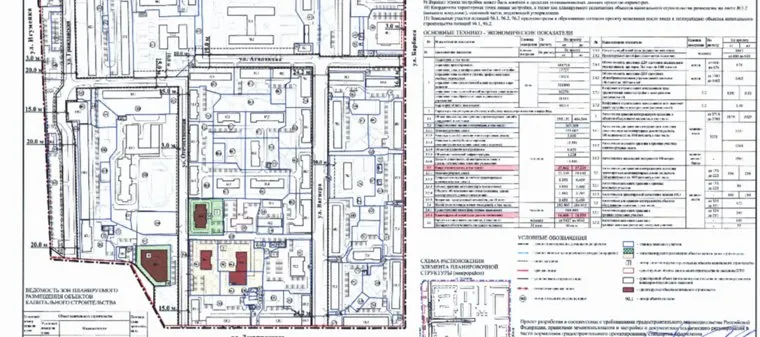
Проектируемая территория составляет 48,67 га
Фото: Вадим Ахметов © URA.RU
В Челябинске в Ленинском районе застройщик ООО «Финтек» возведет новый жилой комплекс с магазинами, автостоянкой и детским садом в границах улиц Дзержинского, Игуменка, Руставели и Барбюса. Площадь застройки составит от двух до трех тысяч квадратных метров, сообщается на сайте мэрии Челябинска.
«Утвердить документацию по планировке территории в границах улиц Дзержинского, Игуменка, Руставели и Барбюса в Ленинском районе города Челябинска. Считать утвержденную документацию по планировке территории основанием для дальнейшего архитектурно-строительного проектирования отдельных объектов капитального строительства», — сообщили в пресс-службе.
В пояснительной записке сообщается, что на территории инициатор проекта построит новый ЖК со встроенным детсадом на 45 мест, магазинами, автостоянкой на 100-150 машиномест. Площадь застройки составит от 1900 до трех тысяч квадратных метров, также возведут ТРК площадью 500-532 квадратных метров. Сама проектируемая территория занимает 48,67 га.

На территории инициатор проекта построит новый ЖК со встроенным детсадом на 45 мест магазинами, автостоянкой на 100-150 машиномест
Фото: пресс-служба мэрии Челябинска
Что случилось в Челябинске и Магнитогорске? Переходите и подписывайтесь на telegram-каналы «Челябинск, который смог» и «Стальной Магнитогорск», чтобы узнавать все новости первыми!
- Натали11 августа 2024 15:07Ливневку сначала постройте!
- Пенсионер10 августа 2024 16:52По моему, у нас в каждом доме, магазин+аптека.И вот опять, ТРК...
- Светлана09 августа 2024 23:40Детсад на 45 мест? Это максимум 2 группы. Почему такой маленький садик? Зато магазинов аж 4 штуки. Не понятно......
- Вера09 августа 2024 22:32Что такое 45 мест в садике? А школу не нужно,вместо ТРК? ТРК " Аврора" рядом совсем..
- Студент09 августа 2024 01:24Кто ж там квартиры купит, зная проблемы ЖКХ этого района..