В Челябинске возле набережной реки Миасс построят новые высотки с детскими садами. Фото

У реки Миасс построят новые многоквартирные дома высотой от 16 до 33 этажей
Фото: Вадим Ахметов © URA.RU
Мэрия Челябинска утвердила проект планировки территории с двумя детскими садами каждый на 120 мест в Центральном районе у набережной реки Миасс. Общая площадь застройки составит 43 тысячи квадратных метров. Инициатором проекта выступает компания ООО СЗ «Новые горизонты», сообщается на сайте мэрии.
«Утвердить документацию по планировке территории в границах улиц Труда, Северо-Крымской, береговой линии реки Миасс, улицы Косарева в Центральном районе города Челябинска. Считать утвержденную документацию основанием для дальнейшего архитектурно-строительного проектирования отдельных объектов капитального строительства», — сообщается на сайте.
Согласно документации, всего застройщиком планируется построить шесть многоквартирных жилых домов разной этажности — от 16 до 33 этажей. Первая очередь строительства предполагает возведение высотного многоквартирного дома со встроенным детским садом на 120 мест и еще двух высотных жилых зданий. Во вторую очередь будут построены три многоквартирных жилых дома, под одним из них подземный паркинг.
Также в Челябинске между ЖК «Манхэттен» и «Западный луч» возведут школу. Новое образовательное учреждение в центре Челябинска построят на одном из последних незастроенных пустырей на улице Труда. Участок площадью 17 тысяч квадратных метров находится на берегу реки Миасс за гипермаркетом «Молния», рядом с общежитием УралГУФК. Предполагается, что это будет образовательный центр на 1500 учеников по типовому проекту — по нему в Челябинске уже построили три школы в Чурилово, в ЖК «Ньютон» и микрорайоне «Академ Riverside».

Общая площадь застройки составит 43 тысячи квадратных метров
Фото: пресс-служба застройщика "Новые горизонты"

На территории возведут новые дома высотой от 16 до 33 этажей
Фото: пресс-служба застройщика "Новые горизонты"

Застройщиком планируется построить шесть высотных многоквартирных домов
Фото: пресс-служба застройщика "Новые горизонты"

Две высотки под строительными номерами 14 и 22 планируется возвести со встроенными детскими садами, каждый на 120 мест
Фото: пресс-служба застройщика "Новые горизонты"

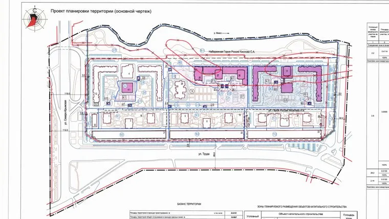
Общая площадь планировки территории составляет 43 тысячи квадратных метров
Фото: сайт администрации города Челябинска
Что случилось в Челябинске и Магнитогорске? Переходите и подписывайтесь на telegram-каналы «Челябинск, который смог» и «Стальной Магнитогорск», чтобы узнавать все новости первыми!
- Татьяна04 июля 2024 15:39Нам там не жить,куда лепить уже,деньги на благотворительность лучше больным детям.
- Ольга02 июля 2024 22:34Местные миллионеры не знают куда свои миллионы девать!!! Строят коробки . Потратили бы лучше на строительство приюта для бездомных животных!!!
- Ольга02 июля 2024 22:30А разве можно там строить??? Лучше бы построили 3 детских сада и Две школы для уже построенных домов!!! Хватит пыль в глаза пускать своими застройками,не нужными никому!!!
- гость02 июля 2024 18:28120 мест в детском саду для такого комплекса? А остальных куда девать?
- Ха- ха- ха02 июля 2024 17:46Комплексная застройка это хорошо, если она прошла экспертищу Только куда это они садик встроили?